38 cub cadet xt1 wiring diagram
Diagram International Cub Tractor Headlight Wiring Full Version Hd Quality. Cub cadet lawn tractors xt1 os107 lt46 tractor 2018 lt50 or95 qr106k 13apa1cr603 diagram 7264 wiring 982 faq 82 series only 680 ags 2150 full 1862 w kohler m18 no spark lt42 efi ih forum 1957 international headlight old wires on 1024 dashboard spareparts 725 safety switch 13ax90as056 1250 parallel for generator 2100 ... Buy Genuine OEM Cub Cadet parts for your Cub Cadet XT1-LT46 Tractor (13APA1CT056) (2018) and ship today! Huge in-stock inventory of OEM Cub Cadet parts. ... Cub Cadet Parts Diagrams, Cub Cadet XT1-LT46 Tractor (13APA1CT056) (2018) .Extended Warranty Option .Quick Reference. Attachments ...
schematron.org - Select Cub Cadet XT1-LT46 (13WPA1CT, 13WPA1CT) - Cub Cadet XT1 Enduro Series Lawn Tractor Diagrams and order Genuine Cub Cadet Mowers: lawn & garden tractor Parts. Easy Ordering, Fast Shipping and Great Service!I need the owner's manual and wiring diagram for Cub Cadet - FixyaI need the owner's manual and wiring diagram for Cub ...

Cub cadet xt1 wiring diagram
Cub Cadet Starter Solenoid Wiring Diagram - Collection. Repairing electrical wiring, a lot more than any other household project is about protection. Install an outlet correctly and it's as safe as that can be; do the installation improperly and it can potentially deadly. That's why there are numerous guidelines surrounding electrical cabling ... Cub Cadet Lt1042 Wiring Schematic - Data Wiring Diagram Schematic - Cub Cadet Wiring Diagram. You can usually depend on Wiring Diagram as an important reference that can assist you to save time and cash. With the aid of the book, you can easily do your personal wiring projects. Whether your need to mow an acre or several, your Cub Cadet tractor provides you exceeding strength and durability while still keeping comfort and command top priorities.Cub Cadet XT1-LT46 Parts List and Diagram - (13WQA1CN) () : diagramweb.netSOLVED: QUESTION ABOUT WIRING DIAGRAM FOR CUB CADET XT1 - - Fixya.
Cub cadet xt1 wiring diagram. Can someone direct me to where I may find the Wiring Diagram for CUB CADET XT1-LT42 2018 13AOA1CS056 Thank You. Menu. Home. Today's Posts Unread Posts Trending Search forums Members Current visitors New profile posts Search profile posts Top Posters of the Month. Mowers. Repair. Buying Advice. Operation. Electrical wiring diagrams may be found in the Operator's Manual. More in-depth electrical troubleshooting information may also be found in the Professional Shop Manual for the product. For electrical diagrams for specific engines and independent brands, see below. Please use the following links to contact the engine manufacturers via their web ... Cub Cadet Wiring Diagram - cub cadet 100 wiring diagram, cub cadet 127 wiring diagram, cub cadet 149 wiring diagram, Every electrical structure is made up of various different components. Each part should be placed and linked to different parts in particular way. Otherwise, the structure won't function as it ought to be. Cub Cadet Lt42 Xt1 2018 Wiring Diagram. Find parts for your cub cadet electrical with our free parts lookup tool! Search easy-to-use diagrams and enjoy same-day shipping on standard Cub Cadet parts. XT1-LT42 (13WVA1CS, 13WVA1CS) - Cub Cadet XT1 Enduro Series Electrical Schematic - Manual PTO Kohler SV Ignition & Electrical.
Buy Genuine OEM Cub Cadet parts for your Cub Cadet XT1-LT42 Tractor (13WVA1CS009) (2017) and ship today! Huge in-stock inventory of OEM Cub Cadet parts. ... Cub Cadet Parts Diagrams, Cub Cadet XT1-LT42 Tractor (13WVA1CS009) (2017) .Extended Warranty Option .Quick Reference. Attachments; Axle-Front ... Cub Cadet Relay Diagram Wiring Diagram Cub Cadet Xt1 Lt50 Tractor 2015 13aqa1cq009 2015 13aqa1cq010 Cub Cadet Schematics Wiring Library Cub Cadet Pto Switch Wiring Diagram Wiring Site Resource Cub Cadet 1430 Wiring Diagram Wiring Diagram 28 Cub Cadet Rzt 50 Belt Diagram 371366785175 Together With 6d163f Cub Cadet 782 Wiring Diagram Wiring ... Cub Cadet Xt1 Wiring Diagram. To properly read a cabling diagram, one provides to learn how the components in the method operate. For example , if a module will be powered up and it sends out a signal of fifty percent the voltage in addition to the technician would not know this, he'd think he offers a problem, as this individual would expect a ... October 5, 2020 · Wiring Diagram. by Hadir. Cub Cadet Wiring Diagram - cub cadet 100 wiring diagram, cub cadet 127 wiring diagram, cub cadet 149 wiring diagram, Every electrical structure is made up of various different components. Each part should be placed and linked to different parts in particular way. Otherwise, the….
Cub Cadet Lawn & Garden Tractors Series XT1 Enduro parts with OEM Cub Cadet parts diagrams to find Cub Cadet Lawn & Garden Tractors Series XT1 Enduro repair parts quickly and easily. The Right Parts, Shipped Fast! Order Status; Customer Support; 512-288-4355; My Account; Order Status. Wiring Diagram For Cub Cadet. As jim said cleaning and tightening all electrical connections including grounds will solve most problems. Your voltage regulator has three terminals. Cub Cadet Wiring Diagram New Cub Cadet Xt1 Lt50 13aqa1cq056 Cub. Pto Wiring Diagram Bestsurvivalknifereviewss Com. Cub Cadet XT1 at Home Depot at: https://bit.ly/2JG69hKOpening circuit for the yellow wire, as shown on video, only allows tractor to run when blades are not ... Cub Cadet Xt1 Wiring Diagram from i.pinimg.com Print the wiring diagram off in addition to use highlighters to be able to trace the circuit. When you use your finger or even the actual circuit along with your eyes, it is easy to mistrace the circuit. A single trick that We use is to print out a similar wiring diagram off twice.
Lookup Parts via Diagram. Use our parts diagram tool below to find the parts you need for your machine. Select the model and year, then browse the parts diagrams to find the right part. Add to cart when you're ready to purchase and we'll ship it to you as soon as possible! This is the most current part for this model.
Ideal for mowing up to 1.5 acres of mostly flat terrain and a few obstacles. The Cub Cadet XT1 LT46 is powered by a 22 hp KOHLER 7000 Series twin cylinder engine. 46-inch stamped, 12-gauge, twin-blade deck with 12 cutting positions. Optimized steering system for responsive handling gives a 16-inch turn radius a zero-turn feel.
Cub Cadet Parts Manuals. Cub Cadet lawn care equipment has been built to last through the harshest of weather conditions. They are a leader in building smart outdoor power equipment with advancements that make their products better, and provide a better user experience. Cub Cadet equipment is award-winning.
Cub Cadet Org Wiring Diagram Tractor Fanatics. Wiring Diagram Cub Cadet 23hp Z Force 50 User Manual Page 28 32. Cub Cadet Z Force 48 Kohler 17bf3agv 2011 17bf3agv010 Wiring Diagram. Cub cadet zero turn rzt 50 17af2acp330 lawn tractors ltx 1042 faq wiring diagrams nf only cadets xt1 or95 xz2 107 17cicbds603 2019 sltx1054 tractor 13wk 2011 ...
In addition to these Cub Cadet Spec Sheets, you can also view a number of Cub Cadet Manuals for some of the most popular Cub Cadet outdoor power equipment. Cub Cadet 2000 Series Wiring Schematics Cub Cadet 2130 Series (1994-1995) Wiring Schematic
291 7463 Wiring Gp Fan Fan Clutch S N Gks1 Up Part Of 306 8501 Wiring Gp Fan An Attachment 320d Excavator Avspare Com
XT1 lawn tractors are ideally equipped for mowing, collecting and transporting clippings, and can be expanded with a special range of accessories. Apr 03, · Here is a link to one of the Cub Cadet Series with a wiring diagram. Yours may be similar to this. If you are NOT Sure, take the mower to the shop for Repair/Service.
Cub Cadet Xt1 Lt42 Wiring Diagram cub cadet xt1 lt42 lawn tractor cub cadet us. i am very glad i picked the cub cadet xt1 l42 as this mower has cut my mowing time i am also impressed with the short turning radius and how my yard looked like a golf course after my first use if you are looking at similar mowers stop wasting your time and go buy a ...
Cub Cadet 2140 Wiring Diagram Fresh Cub Cadet Troubleshooting Free Troubleshooting Examples. READ Diesel Cycle Pv Diagram. cub cadet xt1 vs xt2, cub cadet identification, cub cadet won t start just clicks, cub cadet tires, cub cadet enforcer, cub cadet xt1 manual, cub cadet drive belt tension spring, cub cadet drive belt, cub cadet utv parts ...
Cub Cadet Xt1 Enduro Lt 46 In 22 Hp V Twin Kohler 7000 Series Engine Hydrostatic Drive Gas Riding Lawn Mower Lt46 The Home Depot
XT1-LT42 KH (13AOA1CS056) (2018) CATALOG SEARCH. note: use keywords or part numbers instead of full sentences for best results. examples: 737-3025, 1234, filter, oil, pump, etc.
Cub Cadet Xt1 Lt46 Tractor 2015 13apa1ct009 2015 13apa1ct056 2015 13wpa1ct009 2015 13wpa1ct010 2015 Parts
Easy Ordering, Fast Shipping and Great Service! I need the owner's manual and wiring diagram for Cub Cadet XT1 - Model #13AVA1CS - Manual Number - SN # 1JH Cub Cadet XT2 Enduro Operator Manual Page 36 Cub Cadet HDS wiring diagram can I see one. Enter your make and model # here. Electrical wiring diagrams may be found in the Operator's Manual.
Cub Cadet repair parts and parts diagrams for Cub Cadet XT1-LT 50 (13AQA1CQ056) - Cub Cadet 50" XT1 Enduro Lawn Tractor (2015)
Whether your need to mow an acre or several, your Cub Cadet tractor provides you exceeding strength and durability while still keeping comfort and command top priorities.Cub Cadet XT1-LT46 Parts List and Diagram - (13WQA1CN) () : diagramweb.netSOLVED: QUESTION ABOUT WIRING DIAGRAM FOR CUB CADET XT1 - - Fixya.
Cub Cadet Lt1042 Wiring Schematic - Data Wiring Diagram Schematic - Cub Cadet Wiring Diagram. You can usually depend on Wiring Diagram as an important reference that can assist you to save time and cash. With the aid of the book, you can easily do your personal wiring projects.
Cub Cadet Starter Solenoid Wiring Diagram - Collection. Repairing electrical wiring, a lot more than any other household project is about protection. Install an outlet correctly and it's as safe as that can be; do the installation improperly and it can potentially deadly. That's why there are numerous guidelines surrounding electrical cabling ...
Cub Cadet Rzt Wiring Cub Cadet Zero Turn Rzt 50 17aicacp603 2015 Wiring Diagram Spareparts Please See The Operator S Manual And The Warning Labels Posted On The Vehicle Itself For
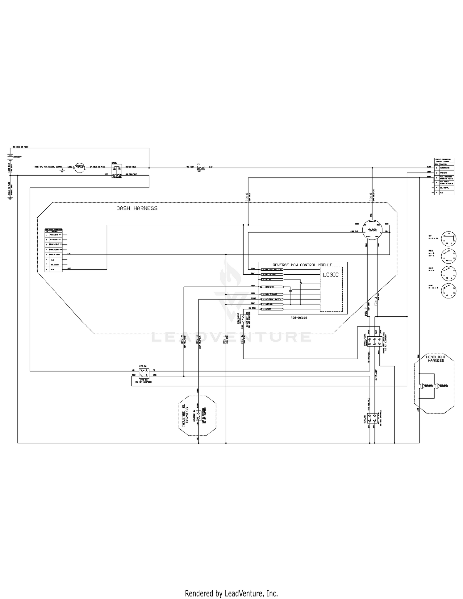
Cub Cadet Xt1 Lt46 Tractor 2015 13apa1ct009 2015 13apa1ct056 2015 13wpa1ct009 2015 13wpa1ct010 2015 Electrical Schematic Manual Pto
Cub Cadet Original Equipment 46 In Mulching Kit With Blades For Lawn Tractors And Zero Turn Mowers 2010 And After 19b30005100 The Home Depot
Cub Cadet Xt1 Os96 13a8a1cf603 2017 Wiring Diagram Dashboard Spareparts 725 06129 Harn Dash Epto Rmc Hm
Cub Cadet Xt1 Lt50 Tractor 2015 13aqa1cq009 2015 13aqa1cq010 2015 13aqa1cq056 2015 13wqa1cq009 2015 13wqa1cq010 2015 Electrical Schematic Electric Pto Shank 39 S Lawn Cub Cadet
Cub Cadet Xt1 Lt42 13a6a9cs010 Cub Cadet 42 Xt1 Enduro Lawn Tractor 2020 Manual Pto Parts Lookup With Diagrams Partstree
Comments
Post a Comment